Cercanía de Santa Maria La Ribera
Departamento en venta en Santa Maria La Ribera
VENTA
MXN 3,742,332.06
Mantenimiento $1,880
Detalle
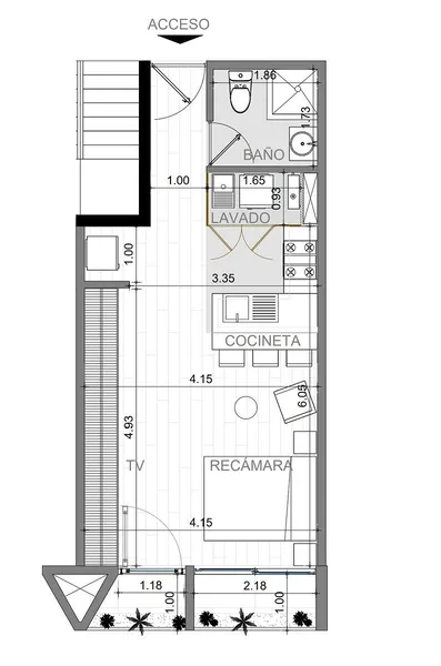
Superficie construida 46m²
Recámaras 1
Baños 1
Estacionamientos 1
Ambientes 3
Descripción
Último Loft entrega Inmediata iluminado en un desarrollo con acceso biometrico,Pet Zone, vigilancia, Gimnasio Roof Top Pet-Friendly Mármol en baños y cocina Barra de granito 1 Recámara 1 Baño Completo Sala/Comedor Área de Lavado *1 ESTACIONAMIENTO * Terraza 36m2 total 76m2 $3,742,332.06 Citas programadas Existencia y precio sujeto a cambio sin previo aviso Fotos ilustrativas Tocayo
El pago podrá realizarse con recursos propios o con crédito hipotecario de cualquier institución, pública o privada, sujeto a la negociación que lleguen las partes de la compraventa y a las políticas de la institución correspondiente. En las operaciones de crédito el costo total se determinará en función de los montos variables de conceptos de crédito y gastos notariales. NOM-247
Características
Ubicación
¿Quieres hacer crecer las ventas de tu inmobiliaria?
Únete a Mudafy para acceder a la mejor tecnología del sector







