Cercanía de San Luís Tlatilco
Nave industrial en renta en San Luís Tlatilco
RENTA
MXN 180,000
Detalle
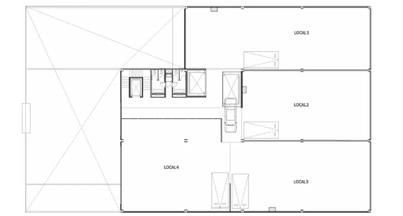
Superficie construida 947m²
Antigüedad 4 años
Descripción
Cuenta con acceso por Blvrd. Periférico Avenida primero de mayo carretera Naucalpan Toluca Piso completo 947m2, incluye baños de hombres y mujeres montacargas internos en la bodega. Bodegas desde 184m2 Bodega 1 .- 338m2 $ 50,700MN +IVA + 15% Mantto. Bodegas de 250m2 $ 37,500MN + IVA +15% de Mantto Bodega de 192m2 $ 28,800MN + IVA + 15% de Mantto Bodega de 184m2 $ 27,600MN + IVA + 15% de Mannto Nivel 1 Bodega 2.- 250m2 Bodega 3.- 192m2 Bodega 4.- 250m2 Bodega 5.- 184m2 área de baños y vestíbulo 71m2 Nivel 2 Bodega 6 .- 250m2 Bodega 8.- 192m2 Bodega 9.- 250m2 Bodega 10.- 184m2 Nivel 3 Bodega 11.- 250m2 Bodega 12.- 192m2 Bodega 13.- 250m2 Bodega 14.- 184m2 Nivel 4 Bodega 15.- 250m2 Bodega 16.- 192m2 Bodega 17.- 250m2 Bodega 18.- 184m2 - Capacidad de carga 1 Ton/ m2 - Altura de bodega 3.50m a lamina - Altura 3.20m2 a trabe - Patio de maniobras con acceso para trailers Lobby Circuito cerrado de seguridad - 32 cajones de estacionamiento con altura libre 3.52m - Escaleras de servicio - Sistema de control de accesos Face ID -Cisterna con capacidad de 120mil litros. - Elevador de pasajeros - Dos montacargas - Sistema contra incendio (hidrantes)
















