PERIFERICO SUR , CENTRO ALPES
Oficina en venta en Los Alpes
VENTA
MXN 7,910,000
Detalle
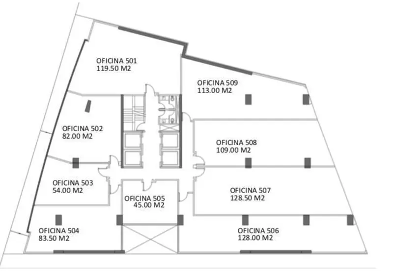
Superficie construida 113m²
Estacionamientos 2
Descripción
Oficina en renta / venta de 113m2 dentro de muy exclusivo y nuevo Business Center en ubicación privilegiada; Periférico Sur esquina con Rómulo O´Farril y Calzada de los Leones. Cuenta con Lobby, Sala de juntas con infraestructura multimedia, Terrazas, Sala de espera, Salones VIP como Sala creativa, Sala standard, Sala Premier, Salón Vip; todos con servicios de diferentes tipos. Todos los salones son completamente acondicionados y amueblados con mucha elegancia. Hay servicios como; Recepción y concierge, alimentos y bebidas, preparación de salas, pre-registro online, centro de impresión y copiado, organización de eventos privados, gurú tecnológico, valet parking para visitas, logística y transporte empresarial, reservación de vuelos y hoteles, Seguridad 24/7. En la Planta Baja se encuentra la recepción de las oficinas con acceso controlado y 4 elevadores de alta velocidad. La oficina incluye 2 lugares de estacionamiento. Se entregan a principios de noviembre 2019. $70,000 pesos x m2 20 años de experiencia. Formamos parte de Great Place to Work. ¿Quieres vender, rentar o comprar? nosotros te podemos ayudar.
El pago podrá realizarse con recursos propios o con crédito hipotecario de cualquier institución, pública o privada, sujeto a la negociación que lleguen las partes de la compraventa y a las políticas de la institución correspondiente. En las operaciones de crédito el costo total se determinará en función de los montos variables de conceptos de crédito y gastos notariales. NOM-247
¿La propiedad está a buen precio?
Descúbrelo con nuestro mapa de valor m2 por alcaldía.
















